Oferujemy na sprzedaż przestronny budynek biurowo-usługowy zlokalizowany w drugiej linii zabudowy w Częstochowie. Obiekt doskonale sprawdzi się zarówno jako siedziba firmy, powierzchnia usługowa, jak i placówka medyczna czy gabinet fizjoterapeutyczny.
Powierzchnia całkowita: 700,80 m²
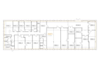
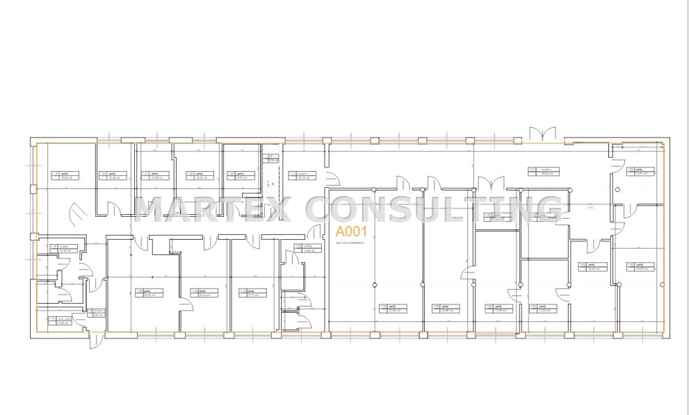
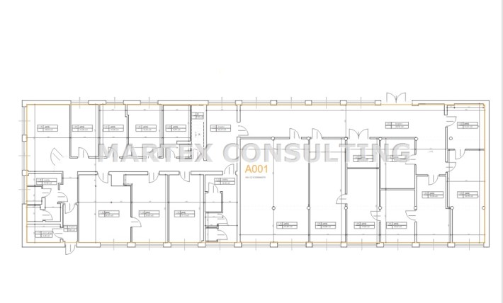
Parter: 384,00 m²
Piwnice: 316,80 m²
Działka: użytkowanie wieczyste
Status własności budynku: pełna własność
Cena: 1 200 000 zł netto (do ceny należy doliczyć VAT)
Piwnice: w pełni podpiwniczony budynek, pomieszczenia czyste, odmalowane, z oknami, idealne pod archiwum, magazyny lub dodatkowe zaplecze usługowe. Dostęp do piwnicy zapewniają dwa oddzielne wejścia.
Parter: w bardzo dobrym stanie, duże okna zapewniające naturalne doświetlenie, około 16 pomieszczeń biurowych, w tym toalety oraz pomieszczenia gospodarcze i pod serwerownię. Układ pomieszczeń umożliwia adaptację pod gabinety medyczne, fizjoterapię lub działalność biurową.
Obiekt oferuje funkcjonalne i przestronne wnętrza, gotowe do prowadzenia działalności biurowej, usługowej lub medycznej. Piwnice mogą pełnić funkcję magazynów, archiwów lub zaplecza technicznego dla działalności usługowej.
Martex Consulting Nieruchomości
44-300 Wodzisław Śląski, ul. Wałowa 44
Telefon: 698 216 513
E-mail: m.toman@martexconsulting.pl
m.bledowska@martexconsulting.pl



